Rental Application
Contact Us: (435) 359-4301
Facebook
Mail
Welcome
Services
Residential
Commercial
Storage
Tips for Organizing Your Storage Unit
About
Blog
Contact
Utah
84770
POA
1
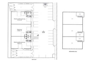
Floor Plan
Property Details
Utah
84770
POA
Description
Commercial 1161 N. 1210 W. Unit A
Warehouse
-
Utah
Office-warehouse with small yard space.
Property Features
Warehouse
1 bath
Built 2019
Floor Area is 2,662 sqft
Ducted Heating
Ducted Cooling
About
admin
Email
Commercial 1161 N. 1210 W. Unit C
Mesa Villas Two Bedroom
Scroll to top